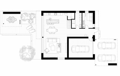
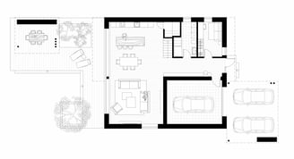
NAMAS#2
Dviejų aukštų gyvenamasis namas su garažu. Pirmame aukšte numatyta erdvi atvira svetainė, virtuvė ir valgomasis, sujungtos į vieną bendrą erdvę. Ši zona leidžia šeimai ir svečiams mėgautis bendru laiko leidimu, o dideli langai užtikrina natūralios šviesos srautą ir atveria vaizdą į kiemą. Antrame aukšte suplanuoti trys erdvūs gyvenamieji kambariai, du vonios kambariai, bei didelė ir erdvi drabužinė. Greta namo numatyta stoginė dviems automobiliams.
Bendras pastato plotas - 205 kv.m






NAMAS #2






Pirmo aukšto planas
Antro aukšto planas
